物件ID:189694
情報公開日:2026年01月30日
情報更新日:2026年04月23日
立地
-
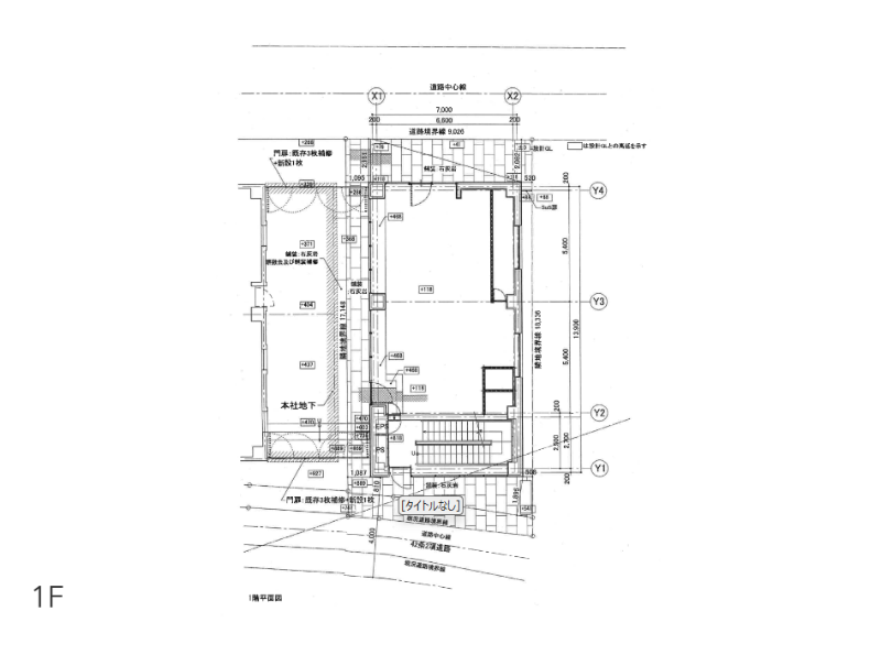
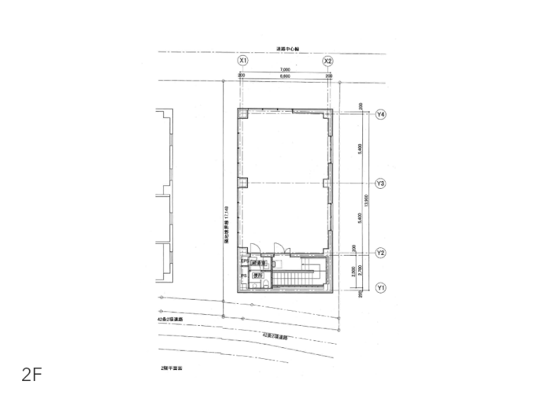
住所 東京都渋谷区神宮前一丁目12-3 建物名/所在階 パティオビル/地下1~2階 最寄駅 JR山手線原宿駅
徒歩3分近隣駅1 東京メトロ千代田線明治神宮前〈原宿〉駅
徒歩3分近隣駅2 東京メトロ副都心線明治神宮前〈原宿〉駅
徒歩3分
費用/契約
-
造作価格 ー 賃料(坪単価) 3,879,920円(44,000円) 管理費/共益費(坪単価) ー(ー) 保証金/敷金 0ヶ月 / 12ヶ月 償却 ご相談 礼金 ご相談 更新料/再契約料 ー その他費用 ー 仲介手数料 1ヶ月 その他手数料 ー 契約期間 ー 契約種別 普通賃貸借
用途
-
物件の現況 ー 可能用途 指定あり 坪数 88.18坪
- 備考
- 店舗内装費用:出店者負担(工事区分表に基づく)
内装監理費・その他個別経費:別途提示
重飲食NG、内容により物販・軽飲食可能




















