物件ID:162359
情報公開日:2026年03月03日
情報更新日:2026年03月03日
立地
-
住所 東京都渋谷区猿楽町28-10 建物名/所在階 モードコスモスビル/地下1階 最寄駅 東急東横線代官山駅
徒歩2分近隣駅1 東京メトロ日比谷線中目黒駅
徒歩7分近隣駅2 東京メトロ日比谷線恵比寿駅
徒歩9分
費用/契約
-
造作価格 ー 賃料(坪単価) 1,620,000円(25,322円) 管理費/共益費(坪単価) 140,000円(2,188円) 保証金/敷金 12ヶ月 / ー 償却 20% 礼金 0ヶ月 更新料/再契約料 1ヶ月 その他費用 ー 仲介手数料 1ヶ月 その他手数料 ー 契約期間 3年 契約種別
用途
-
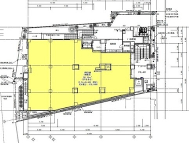
物件の現況 ー 可能用途 指定あり 坪数 63.98坪
- 備考
- 設備:エアコン2台以上,エレベーター



























