物件ID:182689
情報公開日:2025年11月28日
情報更新日:2026年02月24日
立地
-
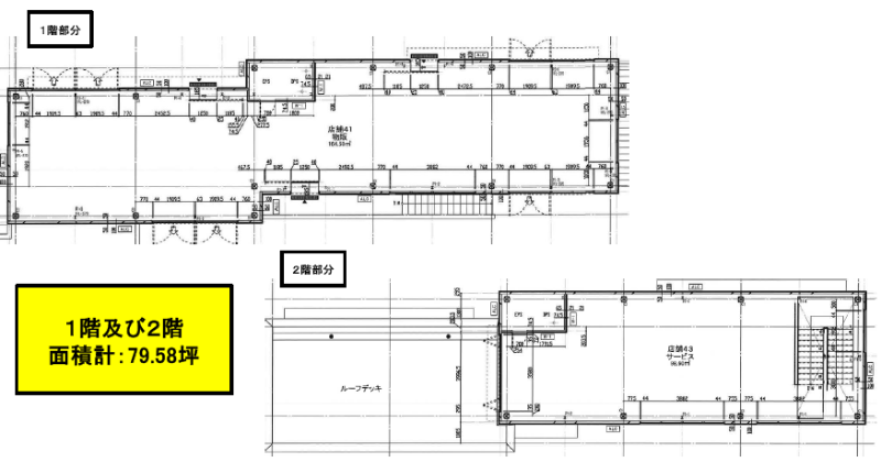
住所 東京都渋谷区代官山町13-1 建物名/所在階 代官山店舗/1~2階 最寄駅 東急東横線代官山駅
徒歩4分近隣駅1 ー 近隣駅2 ー
費用/契約
-
造作価格 ー 賃料(坪単価) 3,063,830円(38,500円) 管理費/共益費(坪単価) ー(ー) 保証金/敷金 0 / 12ヶ月 償却 0 礼金 0 更新料/再契約料 ご相談 その他費用 内装監理費 794,650円 (物販店舗の場合) 仲介手数料 1ヶ月 その他手数料 ー 契約期間 5年 契約種別 普通賃貸借
用途
-
物件の現況 物販 可能用途 指定あり 坪数 79.58坪
- 備考
- *L4棟
電気、上下水道、ガス(2階)・契約期間応相談
引き渡し条件等ご相談ください!






















