物件ID:179933
情報公開日:2025年11月07日
情報更新日:2026年02月06日
立地
-
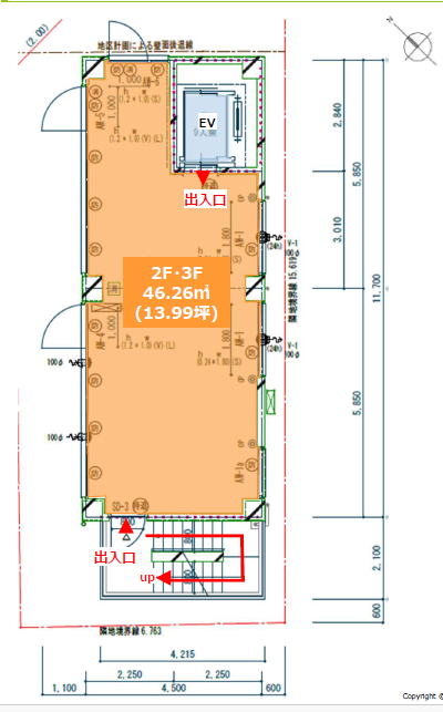
住所 東京都渋谷区神宮前五丁目50-1 建物名/所在階 (仮称)フィル・パーク神宮前5丁目/2階 最寄駅 東京メトロ銀座線表参道駅
徒歩3分近隣駅1 ー 近隣駅2 ー
費用/契約
-
造作価格 ー 賃料(坪単価) 1,437,500円(107,367円) 管理費/共益費(坪単価) ご相談(ご相談) 保証金/敷金 6ヶ月 / ー 償却 ご相談 礼金 1ヶ月 更新料/再契約料 ー その他費用 ー 仲介手数料 1ヶ月 その他手数料 ー 契約期間 ー 契約種別 普通賃貸借
用途
-
物件の現況 ー 可能用途 指定あり 坪数 13.39坪
- 備考



















