物件ID:179490
情報公開日:2025年11月05日
情報更新日:2026年04月28日
立地
-
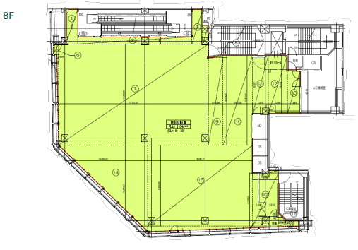
住所 東京都新宿区新宿三丁目1-20 建物名/所在階 8階 最寄駅 東京メトロ丸ノ内線新宿三丁目駅
徒歩1分近隣駅1 ー 近隣駅2 ー
費用/契約
-
造作価格 ー 賃料(坪単価) ご相談(0円) 管理費/共益費(坪単価) ご相談(ご相談) 保証金/敷金 ー / 12ヶ月 償却 0% 礼金 ご相談 更新料/再契約料 ー その他費用 その他費用あり 仲介手数料 1ヶ月 その他手数料 ー 契約期間 ー 契約種別 普通賃貸借
用途
-
物件の現況 サービス(その他) 可能用途 指定あり 坪数 161.35坪
- 備考
- 保証会社加入必須 保険加入必須




















