物件ID:177496
情報公開日:2025年10月20日
情報更新日:2026年04月18日
立地
-
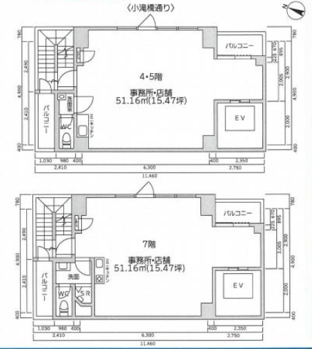
住所 東京都新宿区西新宿七丁目9-12 建物名/所在階 3S Bldg. 7F/7階 最寄駅 JR山手線新宿駅
徒歩5分近隣駅1 ー 近隣駅2 ー
費用/契約
-
造作価格 ー 賃料(坪単価) 450,000円(29,077円) 管理費/共益費(坪単価) ー(ー) 保証金/敷金 10ヶ月 / ー 償却 ご相談 礼金 1ヶ月 更新料/再契約料 ー その他費用 ー 仲介手数料 1ヶ月 その他手数料 ー 契約期間 7年 契約種別 普通賃貸借
用途
-
物件の現況 サービス(その他) 可能用途 指定あり 坪数 15.48坪
- 備考




















