物件ID:200547
情報公開日:2026年04月24日
情報更新日:2026年04月24日
立地
-
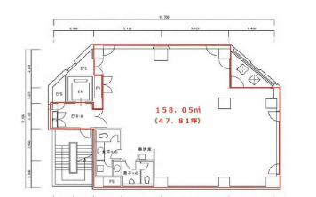
住所 東京都新宿区西新宿一丁目23-1 建物名/所在階 TK新都心ビル 4F/4階 最寄駅 JR山手線新宿駅
徒歩3分近隣駅1 ー 近隣駅2 ー
費用/契約
-
造作価格 ー 賃料(坪単価) 1,525,139円(31,899円) 管理費/共益費(坪単価) ー(ー) 保証金/敷金 ー / 10ヶ月 償却 1ヶ月 礼金 0ヶ月 更新料/再契約料 1ヶ月 その他費用 ー 仲介手数料 1ヶ月 その他手数料 ー 契約期間 2年 契約種別
用途
-
物件の現況 サービス(その他) 可能用途 指定あり 坪数 47.81坪
- 備考





















