物件ID:162445
情報公開日:2025年06月11日
情報更新日:2026年02月23日
立地
-
住所 東京都新宿区大久保一丁目14 建物名/所在階 三辰ビル/3階 最寄駅 JR山手線新大久保駅
徒歩5分近隣駅1 東京メトロ副都心線東新宿駅
徒歩5分近隣駅2 JR中央・総武線大久保駅
徒歩10分
費用/契約
-
造作価格 ー 賃料(坪単価) 636,400円(15,396円) 管理費/共益費(坪単価) 136,389円(3,299円) 保証金/敷金 ご相談 / 6ヶ月 償却 20% 礼金 ご相談 更新料/再契約料 ー その他費用 ー 仲介手数料 1ヶ月 その他手数料 ー 契約期間 3年 契約種別 普通賃貸借
用途
-
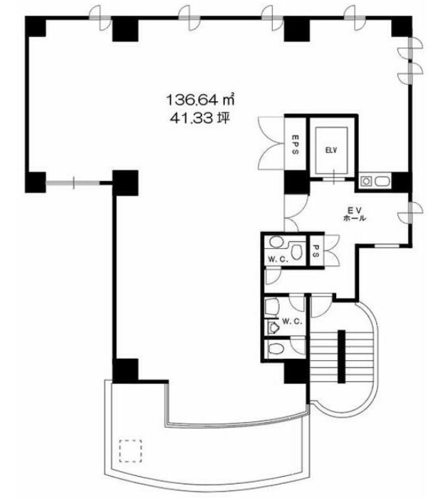
物件の現況 サービス(その他) 可能用途 指定あり 坪数 41.33坪
- 備考
- 業態につきましてはお気軽にスタッフまでお申し付けくださいませ。
新大久保駅が最寄りの物件です。天高2.5mです。
事務所兼店舗のような業態にオススメです。





















