物件ID:200252
情報公開日:2026年04月22日
情報更新日:2026年04月22日
立地
-
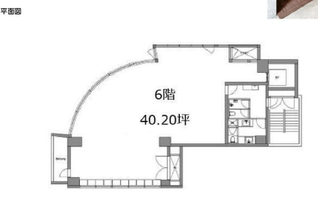
住所 東京都千代田区外神田四丁目7-5 建物名/所在階 石川興産ビル 6F/6階 最寄駅 東京メトロ銀座線末広町駅
徒歩1分近隣駅1 JR山手線秋葉原駅
徒歩6分近隣駅2 東京メトロ千代田線湯島駅
徒歩9分
費用/契約
-
造作価格 ー 賃料(坪単価) 685,410円(17,050円) 管理費/共益費(坪単価) 176,880円(4,400円) 保証金/敷金 10ヶ月 / ー 償却 1ヶ月 礼金 1ヶ月 更新料/再契約料 1ヶ月 その他費用 ー 仲介手数料 1ヶ月 その他手数料 ー 契約期間 2年 契約種別
用途
-
物件の現況 サービス(その他) 可能用途 指定あり 坪数 40.20坪
- 備考





















