物件ID:139202
情報公開日:2025年09月10日
情報更新日:2025年12月03日
立地
-
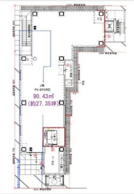
住所 東京都千代田区神田神保町一丁目34-1 建物名/所在階 ENetial神保町/1階 最寄駅 都営新宿線神保町駅
徒歩3分近隣駅1 東京メトロ丸ノ内線御茶ノ水駅
徒歩9分近隣駅2 東京メトロ千代田線新御茶ノ水駅
徒歩10分
費用/契約
-
造作価格 ー 賃料(坪単価) 880,000円(32,169円) 管理費/共益費(坪単価) 93,159円(3,405円) 保証金/敷金 10ヶ月 / ー 償却 2ヶ月 礼金 1ヶ月 更新料/再契約料 ー その他費用 ー 仲介手数料 1ヶ月 その他手数料 ー 契約期間 10年 契約種別 普通賃貸借
用途
-
物件の現況 ー 可能用途 指定あり 坪数 27.36坪
- 備考























