物件ID:182222
情報公開日:2025年11月26日
情報更新日:2026年02月25日
立地
-
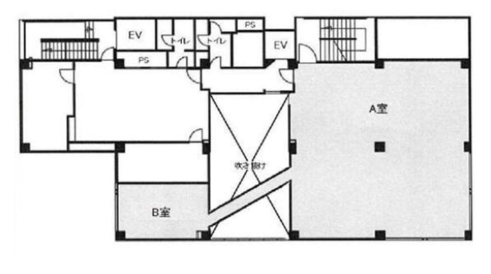
住所 東京都千代田区六番町5-5 建物名/所在階 飯田ビル 2FAB 四ツ谷/2階 最寄駅 JR中央・総武線四ツ谷駅
徒歩4分近隣駅1 ー 近隣駅2 ー
費用/契約
-
造作価格 ー 賃料(坪単価) 1,056,000円(22,000円) 管理費/共益費(坪単価) 105,600円(2,200円) 保証金/敷金 6ヶ月 / ー 償却 1ヶ月 礼金 0ヶ月 更新料/再契約料 ー その他費用 ー 仲介手数料 1ヶ月 その他手数料 ー 契約期間 2年 契約種別
用途
-
物件の現況 サービス(その他) 可能用途 指定あり 坪数 48.00坪
- 備考




















