物件ID:179570
情報公開日:2025年11月05日
情報更新日:2026年03月14日
立地
-
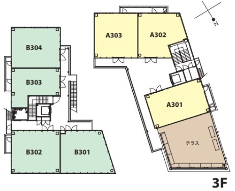
住所 東京都杉並区阿佐谷南一丁目47-17 建物名/所在階 ★A-3 ASAGAYA E棟 302区画/3階 最寄駅 JR中央線(快速)阿佐ケ谷駅
徒歩2分近隣駅1 ー 近隣駅2 ー
費用/契約
-
造作価格 ー 賃料(坪単価) 595,100円(27,495円) 管理費/共益費(坪単価) 70,125円(3,239円) 保証金/敷金 ー / 10ヶ月 償却 ご相談 礼金 1ヶ月 更新料/再契約料 ー その他費用 別途、内裝監理費·現場協力金等の費用負担有 仲介手数料 1ヶ月 その他手数料 ー 契約期間 5年 契約種別 普通賃貸借
用途
-
物件の現況 ー 可能用途 指定あり 坪数 21.64坪
- 備考
- ● 阿佐ヶ谷の駅近新築商業ビル!
● 隣接区画の一括貸し可!
● ベーカリー、スイーツ、カフェ大歓迎!




















