物件ID:179569
情報公開日:2025年11月05日
情報更新日:2026年03月14日
立地
-
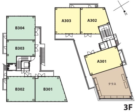
住所 東京都杉並区阿佐谷南一丁目47-17 建物名/所在階 ★A-3 ASAGAYA E棟 304区画/3階 最寄駅 JR中央線(快速)阿佐ケ谷駅
徒歩2分近隣駅1 ー 近隣駅2 ー
費用/契約
-
造作価格 ー 賃料(坪単価) 516,373円(25,300円) 管理費/共益費(坪単価) 67,353円(3,300円) 保証金/敷金 ー / 10ヶ月 償却 ご相談 礼金 1ヶ月 更新料/再契約料 ー その他費用 別途、内裝監理費·現場協力金等の費用負担有 仲介手数料 1ヶ月 その他手数料 ー 契約期間 5年 契約種別 普通賃貸借
用途
-
物件の現況 ー 可能用途 指定あり 坪数 20.41坪
- 備考




















