物件ID:174197
情報公開日:2025年09月22日
情報更新日:2026年03月08日
立地
-
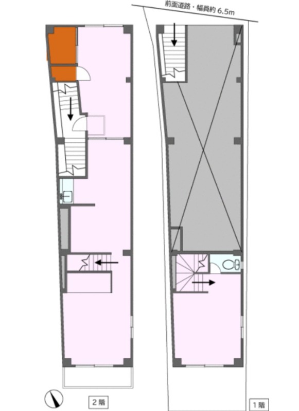
住所 東京都渋谷区千駄ケ谷四丁目9-21 建物名/所在階 EDIFICE北参道/1~2階 最寄駅 東京メトロ副都心線北参道駅
徒歩4分近隣駅1 JR中央・総武線代々木駅
徒歩8分近隣駅2 JR中央・総武線千駄ケ谷駅
徒歩8分
費用/契約
-
造作価格 ー 賃料(坪単価) 495,000円(19,027円) 管理費/共益費(坪単価) ー(ー) 保証金/敷金 4ヶ月 / ー 償却 3ヶ月 礼金 2ヶ月 更新料/再契約料 ご相談 その他費用 保険・保証会社加入要 仲介手数料 1ヶ月 その他手数料 ー 契約期間 2年 契約種別
用途
-
物件の現況 サービス(その他) 可能用途 指定あり 坪数 26.02坪
- 備考
- 前テナント:事務所
現況の造作はすべて残置扱い/配管等の施設は借主側負担
解約通告3ヶ月前/解約時は造作無償引渡しかスケルトン渡し



















