物件ID:188880
情報公開日:2026年01月25日
情報更新日:2026年04月22日
立地
-
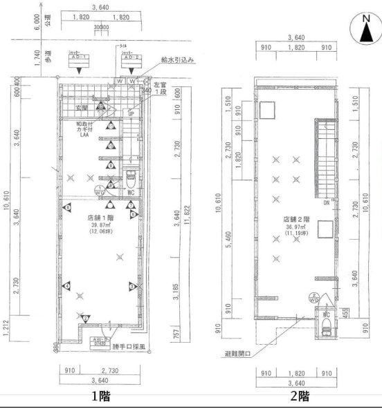
住所 東京都世田谷区等々力四丁目4-10 建物名/所在階 アンジェラハウス等々力 一棟/1~2階 最寄駅 東急大井町線等々力駅
徒歩4分近隣駅1 東急大井町線尾山台駅
徒歩5分近隣駅2 ー
費用/契約
-
造作価格 ー 賃料(坪単価) 660,000円(26,720円) 管理費/共益費(坪単価) ー(ー) 保証金/敷金 10ヶ月 / ー 償却 20% 礼金 1ヶ月 更新料/再契約料 ー その他費用 ー 仲介手数料 1ヶ月 その他手数料 ー 契約期間 10年 契約種別 普通賃貸借
用途
-
物件の現況 サービス(その他) 可能用途 指定あり 坪数 24.70坪
- 備考





















