物件ID:172085
情報公開日:2025年09月04日
情報更新日:2026年04月24日
立地
-
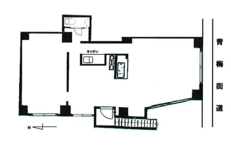
住所 東京都杉並区上荻四丁目19-23 建物名/所在階 ヴィラレインボー上荻 202/2階 最寄駅 JR中央線(快速)西荻窪駅
徒歩15分近隣駅1 ー 近隣駅2 ー
費用/契約
-
造作価格 ー 賃料(坪単価) 308,000円(10,181円) 管理費/共益費(坪単価) ー(ー) 保証金/敷金 1ヶ月 / ー 償却 1ヶ月 礼金 2 更新料/再契約料 1ヶ月 その他費用 ー 仲介手数料 1ヶ月 その他手数料 ー 契約期間 3年 契約種別
用途
-
物件の現況 サービス(その他) 可能用途 指定あり 坪数 30.25坪
- 備考




















