物件ID:170198
情報公開日:2025年08月21日
情報更新日:2026年04月01日
立地
-
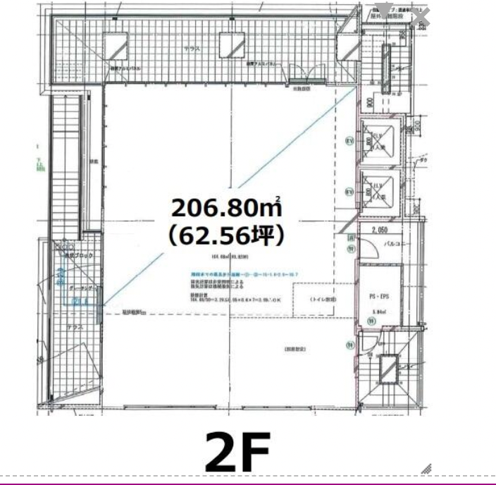
住所 東京都豊島区南池袋二丁目17-7 建物名/所在階 アップルーヴメント/2階 最寄駅 JR山手線池袋駅
徒歩3分近隣駅1 JR埼京線池袋駅
徒歩3分近隣駅2 JR湘南新宿ライン池袋駅
徒歩3分
費用/契約
-
造作価格 ー 賃料(坪単価) 2,591,200円(51,704円) 管理費/共益費(坪単価) 275,660円(5,500円) 保証金/敷金 0ヶ月 / 0ヶ月 償却 0% 礼金 0ヶ月 更新料/再契約料 1ヶ月 その他費用 ー 仲介手数料 1ヶ月 その他手数料 ー 契約期間 3年 契約種別
用途
-
物件の現況 ー 可能用途 指定あり 坪数 50.12坪
- 備考
- 保証人不要 飲食店可 角部屋 1フロア1テナント スケルトン
天井高2.5m以上 免震構造 耐震構造(新耐震基準)
24時間使用可能、屋上までのダクト設置済 演奏可能/ 深夜営業可能























