物件ID:188806
情報公開日:2026年01月24日
情報更新日:2026年04月08日
立地
-
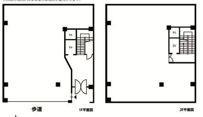
住所 東京都豊島区巣鴨二丁目11-5 建物名/所在階 巣鴨第一ビル 1F-2F 一括/1~2階 最寄駅 JR山手線巣鴨駅
徒歩3分近隣駅1 都営三田線巣鴨駅
徒歩3分近隣駅2 東京さくらトラム(都電荒川線)新庚申塚駅
徒歩10分
費用/契約
-
造作価格 ー 賃料(坪単価) 1,210,000円(18,717円) 管理費/共益費(坪単価) ー(ー) 保証金/敷金 3ヶ月 / ー 償却 20% 礼金 2ヶ月 更新料/再契約料 ー その他費用 鍵交換相談 仲介手数料 1ヶ月 その他手数料 ー 契約期間 3年 契約種別
用途
-
物件の現況 ー 可能用途 指定あり 坪数 64.64坪
- 備考




















