物件ID:167749
情報公開日:2025年07月27日
情報更新日:2026年02月25日
立地
-
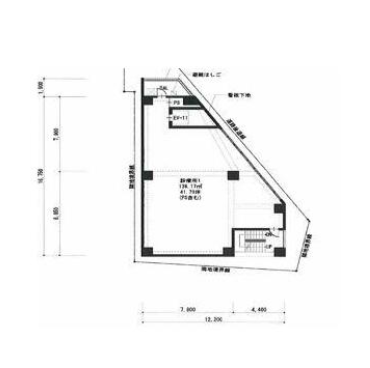
住所 東京都大田区千鳥一丁目21-5 建物名/所在階 メディカルパレス千鳥/4階 最寄駅 東急池上線千鳥町駅
徒歩1分近隣駅1 ー 近隣駅2 ー
費用/契約
-
造作価格 ご相談 賃料(坪単価) 594,000円(14,211円) 管理費/共益費(坪単価) 22,984円(549円) 保証金/敷金 6ヶ月 / ご相談 償却 ご相談 礼金 1ヶ月 更新料/再契約料 ー その他費用 ー 仲介手数料 1ヶ月 その他手数料 ー 契約期間 3年 契約種別
用途
-
物件の現況 ー 可能用途 指定あり 坪数 41.80坪
- 備考
- クリニック歓迎
24時間利用可能、1フロア1テナント




















