物件ID:156908
情報公開日:2025年04月24日
情報更新日:2026年04月20日
立地
-
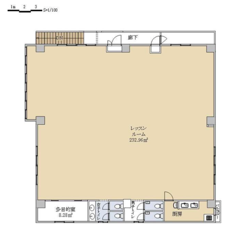
住所 神奈川県横須賀市根岸町二丁目19-4 建物名/所在階 よこすかアクトホール 2F/2階 最寄駅 京急久里浜線北久里浜駅
徒歩2分近隣駅1 ー 近隣駅2 ー
費用/契約
-
造作価格 ー 賃料(坪単価) 440,000円(5,553円) 管理費/共益費(坪単価) ー(ー) 保証金/敷金 ー / 3ヶ月 償却 ご相談 礼金 1ヶ月 更新料/再契約料 1ヶ月 その他費用 ー 仲介手数料 1ヶ月 その他手数料 ー 契約期間 3年 契約種別
用途
-
物件の現況 サービス(その他) 可能用途 指定あり 坪数 79.23坪
- 備考



















