物件ID:184391
情報公開日:2025年12月11日
情報更新日:2026年03月04日
立地
-
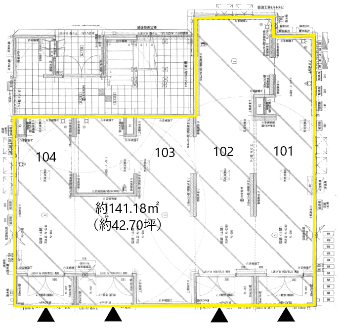
住所 神奈川県横須賀市追浜町二丁目13-1 建物名/所在階 ションデロチェス追浜 1/1階 最寄駅 京急本線追浜駅
徒歩3分近隣駅1 ー 近隣駅2 ー
費用/契約
-
造作価格 ー 賃料(坪単価) 429,000円(10,045円) 管理費/共益費(坪単価) 22,000円(515円) 保証金/敷金 0 / 6ヶ月 償却 0 礼金 1ヶ月 更新料/再契約料 1ヶ月 その他費用 ー 仲介手数料 1ヶ月 その他手数料 ー 契約期間 3年 契約種別
用途
-
物件の現況 ー 可能用途 ご相談 坪数 42.71坪
- 備考
- ガス配管は102号室・103号室部分のみ※商店街加入あり(要確認)
賃貸保証加入要 :初回保証委託料賃料合計の100%
継続保証委託料賃料合計の10%(下限20,000円)/年





















