物件ID:201027
情報公開日:2026年04月28日
情報更新日:2026年04月28日
立地
-
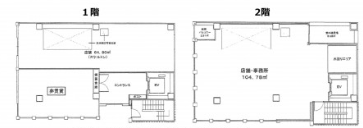
住所 東京都品川区上大崎三丁目5-1 建物名/所在階 1~2階 最寄駅 JR山手線目黒駅
徒歩4分近隣駅1 ー 近隣駅2 ー
費用/契約
-
造作価格 ー 賃料(坪単価) ご相談(0円) 管理費/共益費(坪単価) ご相談(ご相談) 保証金/敷金 ご相談 / ー 償却 ご相談 礼金 ご相談 更新料/再契約料 ご相談 その他費用 ー 仲介手数料 1ヶ月 その他手数料 ー 契約期間 3年 契約種別 普通賃貸借
用途
-
物件の現況 サービス(その他) 可能用途 指定あり 坪数 49.97坪
- 備考



















