物件ID:200939
情報公開日:2026年04月28日
情報更新日:2026年04月28日
立地
-
住所 東京都中央区京橋一丁目1-9 建物名/所在階 LEO八重洲ビル 9F/9階 最寄駅 JR山手線東京駅
徒歩4分近隣駅1 ー 近隣駅2 ー
費用/契約
-
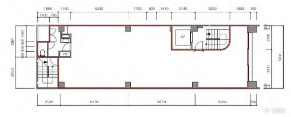
造作価格 ー 賃料(坪単価) 902,176円(35,194円) 管理費/共益費(坪単価) ー(ー) 保証金/敷金 8ヶ月 / ー 償却 1ヶ月 礼金 0ヶ月 更新料/再契約料 ー その他費用 ー 仲介手数料 1ヶ月 その他手数料 ー 契約期間 2年 契約種別 普通賃貸借
用途
-
物件の現況 サービス(その他) 可能用途 指定あり 坪数 25.63坪
- 備考





















