物件ID:200739
情報公開日:2026年04月25日
情報更新日:2026年04月26日
立地
-
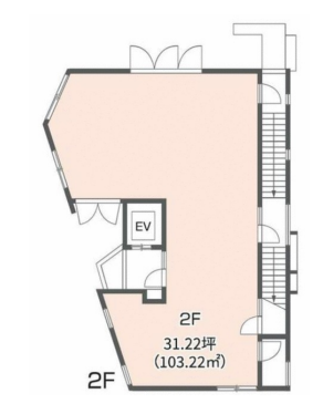
住所 東京都目黒区自由が丘一丁目24-6 建物名/所在階 Le Ciel Blue Ⅲ/2階 最寄駅 東急東横線自由が丘駅
徒歩4分近隣駅1 ー 近隣駅2 ー
費用/契約
-
造作価格 ー 賃料(坪単価) 1,339,338円(42,832円) 管理費/共益費(坪単価) 33,000円(1,055円) 保証金/敷金 6ヶ月 / ー 償却 20% 礼金 1ヶ月 更新料/再契約料 1ヶ月 その他費用 ー 仲介手数料 1ヶ月 その他手数料 ー 契約期間 3年 契約種別
用途
-
物件の現況 ー 可能用途 ご相談 坪数 31.27坪
- 備考
- 保証会社加入要



















