物件ID:200706
情報公開日:2026年04月25日
情報更新日:2026年04月25日
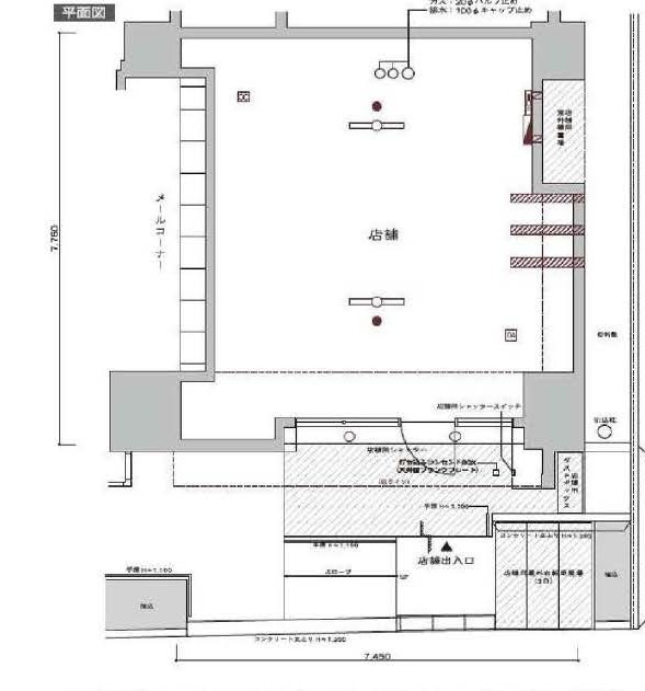
立地
-
住所 東京都府中市宮西町一丁目13-1 建物名/所在階 ザ・ライオンズ府中/1階 最寄駅 京王線府中駅
徒歩2分近隣駅1 ー 近隣駅2 ー
費用/契約
-
造作価格 ー 賃料(坪単価) 462,000円(29,410円) 管理費/共益費(坪単価) 14,000円(891円) 保証金/敷金 0ヶ月 / 5ヶ月 償却 0% 礼金 1ヶ月 更新料/再契約料 1ヶ月 その他費用 ー 仲介手数料 1ヶ月 その他手数料 ー 契約期間 3年 契約種別
用途
-
物件の現況 ー 可能用途 指定あり 坪数 15.71坪
- 備考



















