物件ID:200266
情報公開日:2026年04月22日
情報更新日:2026年04月23日
立地
-
住所 東京都新宿区新宿二丁目3-2 建物名/所在階 光和ビル 301/3階 最寄駅 都営新宿線新宿三丁目駅
徒歩3分近隣駅1 ー 近隣駅2 ー
費用/契約
-
造作価格 ー 賃料(坪単価) 710,600円(20,899円) 管理費/共益費(坪単価) ー(ー) 保証金/敷金 6ヶ月 / ー 償却 30% 礼金 1ヶ月 更新料/再契約料 ー その他費用 ー 仲介手数料 1ヶ月 その他手数料 ー 契約期間 3年 契約種別 普通賃貸借
用途
-
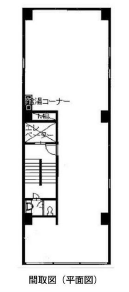
物件の現況 サービス(その他) 可能用途 指定あり 坪数 34.00坪
- 備考
- 袖看板料11000円月





















