物件ID:200053
情報公開日:2026年04月21日
情報更新日:2026年04月21日
立地
-
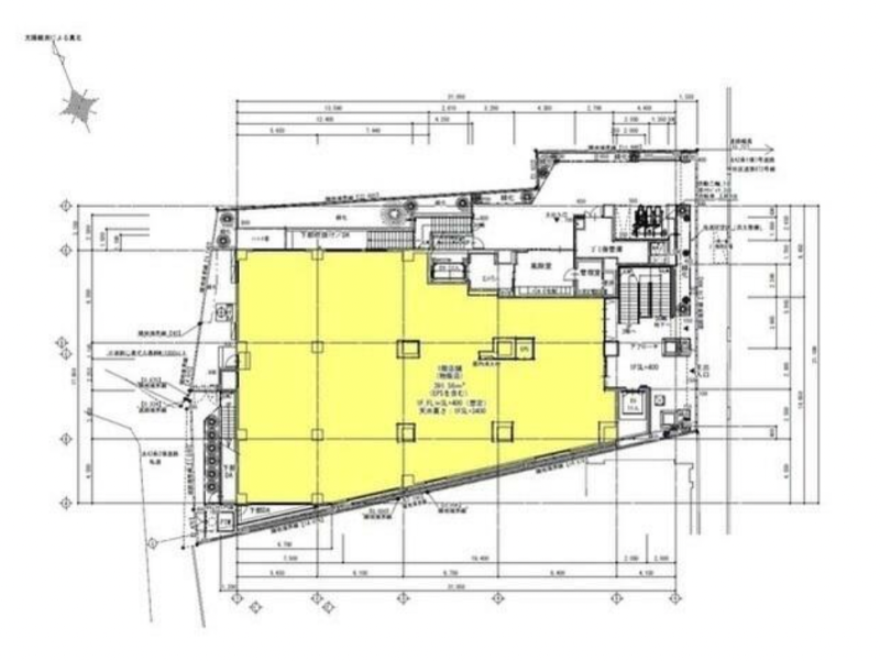
住所 東京都渋谷区猿楽町11-8 建物名/所在階 ENetial代官山/1階 最寄駅 東急東横線代官山駅
徒歩3分近隣駅1 JR山手線恵比寿駅
徒歩5分近隣駅2 JR埼京線恵比寿駅
徒歩5分
費用/契約
-
造作価格 ー 賃料(坪単価) 5,211,360円(43,428円) 管理費/共益費(坪単価) ー(ー) 保証金/敷金 47,376,000 / 0ヶ月 償却 ご相談 礼金 1ヶ月 更新料/再契約料 1ヶ月 その他費用 ー 仲介手数料 1ヶ月 その他手数料 ー 契約期間 10年 契約種別 普通賃貸借
用途
-
物件の現況 ー 可能用途 指定あり 坪数 120.00坪
- 備考






















