物件ID:199490
情報公開日:2026年04月16日
情報更新日:2026年04月16日
立地
-
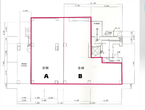
住所 東京都練馬区豊玉北二丁目16-1 建物名/所在階 With2in1 1FA/1階 最寄駅 西武池袋線江古田駅
徒歩6分近隣駅1 ー 近隣駅2 ー
費用/契約
-
造作価格 ー 賃料(坪単価) 366,190円(14,847円) 管理費/共益費(坪単価) ー(ー) 保証金/敷金 6ヶ月 / ー 償却 2ヶ月 礼金 0ヶ月 更新料/再契約料 ー その他費用 ー 仲介手数料 1ヶ月 その他手数料 ー 契約期間 3年 契約種別
用途
-
物件の現況 ー 可能用途 指定あり 坪数 24.66坪
- 備考





















