物件ID:198859
情報公開日:2026年04月11日
情報更新日:2026年04月11日
立地
-
住所 東京都中央区日本橋浜町一丁目7-9 建物名/所在階 泰道ビル(タイドウビル)/1階 最寄駅 都営新宿線浜町駅
徒歩3分近隣駅1 都営浅草線東日本橋駅
徒歩4分近隣駅2 東京メトロ日比谷線人形町駅
徒歩6分
費用/契約
-
造作価格 ー 賃料(坪単価) 605,000円(22,573円) 管理費/共益費(坪単価) ー(ー) 保証金/敷金 6ヶ月 / 0 償却 ご相談 礼金 0 更新料/再契約料 1ヶ月 その他費用 ー 仲介手数料 1ヶ月 その他手数料 ー 契約期間 ー 契約種別
用途
-
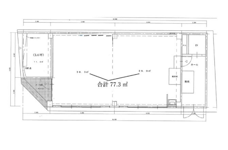
物件の現況 ー 可能用途 指定あり 坪数 26.80坪
- 備考




















