物件ID:198378
情報公開日:2026年04月08日
情報更新日:2026年04月08日
立地
-
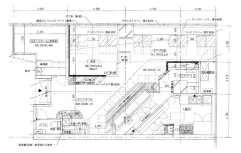
住所 東京都中央区日本橋人形町一丁目12-11 建物名/所在階 リガーレ日本橋人形町/2階 最寄駅 東京メトロ半蔵門線水天宮前駅
徒歩2分近隣駅1 ー 近隣駅2 ー
費用/契約
-
造作価格 ご相談 賃料(坪単価) 814,000円(31,037円) 管理費/共益費(坪単価) ー(ー) 保証金/敷金 10ヶ月 / 0ヶ月 償却 3ヶ月 礼金 3ヶ月 更新料/再契約料 1ヶ月 その他費用 ー 仲介手数料 1ヶ月 その他手数料 ー 契約期間 2年 契約種別
用途
-
物件の現況 鉄板焼き 可能用途 ご相談 坪数 26.23坪
- 備考



























