物件ID:194429
情報公開日:2026年03月08日
情報更新日:2026年03月08日
立地
-
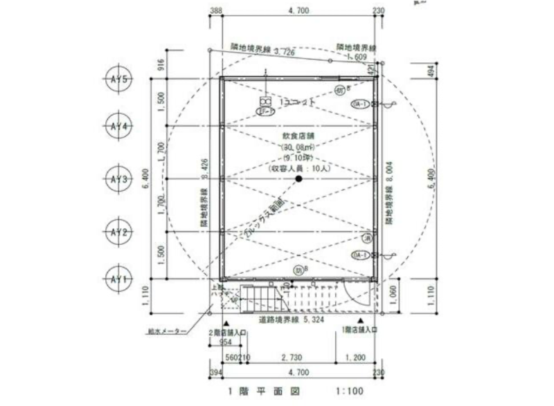
住所 東京都文京区小日向四丁目7-11 建物名/所在階 マガザン茗荷谷/1階 最寄駅 東京メトロ丸ノ内線茗荷谷駅
徒歩1分近隣駅1 ー 近隣駅2 ー
費用/契約
-
造作価格 ー 賃料(坪単価) 330,000円(36,266円) 管理費/共益費(坪単価) ー(ー) 保証金/敷金 6ヶ月 / 0ヶ月 償却 0% 礼金 1ヶ月 更新料/再契約料 1ヶ月 その他費用 ー 仲介手数料 1ヶ月 その他手数料 ー 契約期間 3年 契約種別
用途
-
物件の現況 ー 可能用途 何業も可 坪数 9.10坪
- 備考



















