物件ID:194211
情報公開日:2026年03月06日
情報更新日:2026年03月27日
立地
-
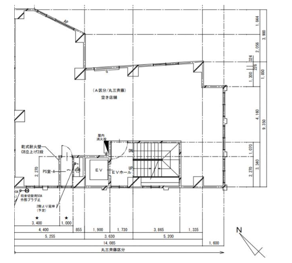
住所 神奈川県横須賀市若松町二丁目7-7 建物名/所在階 ミウラプラザビル/4階 最寄駅 京急本線横須賀中央駅
徒歩1分近隣駅1 ー 近隣駅2 ー
費用/契約
-
造作価格 ー 賃料(坪単価) 1,133,000円(24,294円) 管理費/共益費(坪単価) 80,000円(1,715円) 保証金/敷金 10ヶ月 / ー 償却 20% 礼金 1ヶ月 更新料/再契約料 1ヶ月 その他費用 保証会社・火災保険加入要 仲介手数料 1ヶ月 その他手数料 ー 契約期間 5年 契約種別
用途
-
物件の現況 ー 可能用途 指定あり 坪数 46.64坪
- 備考
- 看板利用料は賃料に含む エレベーター 現在ATM設置
飲食以外:賃料1,012,000円



















