物件ID:188997
情報公開日:2026年01月26日
情報更新日:2026年04月22日
立地
-
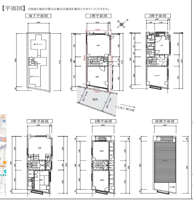
住所 東京都世田谷区世田谷二丁目24-2 建物名/所在階 世田谷2丁目店舗併用住宅/地下1~4階 最寄駅 東急世田谷線上町駅
徒歩8分近隣駅1 ー 近隣駅2 ー
費用/契約
-
造作価格 ー 賃料(坪単価) 660,000円(14,281円) 管理費/共益費(坪単価) ー(ー) 保証金/敷金 3ヶ月 / ー 償却 ご相談 礼金 1ヶ月 更新料/再契約料 ー その他費用 ー 仲介手数料 1ヶ月 その他手数料 ー 契約期間 ー 契約種別
用途
-
物件の現況 サービス(その他) 可能用途 指定あり 坪数 46.21坪
- 備考




















