物件ID:188687
情報公開日:2026年01月23日
情報更新日:2026年04月17日
立地
-
住所 東京都港区西麻布四丁目11 建物名/所在階 麻布エンパイアマンション/1階 最寄駅 東京メトロ日比谷線六本木駅
徒歩8分近隣駅1 ー 近隣駅2 ー
費用/契約
-
造作価格 ー 賃料(坪単価) 583,000円(39,655円) 管理費/共益費(坪単価) 16,500円(1,122円) 保証金/敷金 10ヶ月 / 0ヶ月 償却 20% 礼金 1ヶ月 更新料/再契約料 ー その他費用 ー 仲介手数料 1ヶ月 その他手数料 ー 契約期間 3年 契約種別 普通賃貸借
用途
-
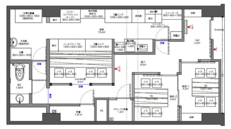
物件の現況 居酒屋 可能用途 ご相談 坪数 14.70坪
- 備考
- 居抜募集ですが引時の状態相談可。解約時スケルトン返し























