物件ID:138713
情報公開日:2026年04月01日
情報更新日:2026年04月01日
立地
-
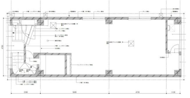
住所 東京都港区麻布十番一丁目11-10 建物名/所在階 Across10/1階 最寄駅 都営大江戸線麻布十番駅
徒歩1分近隣駅1 東京メトロ南北線麻布十番駅
徒歩1分近隣駅2 ー
費用/契約
-
造作価格 ー 賃料(坪単価) 1,067,000円(76,182円) 管理費/共益費(坪単価) ー(ー) 保証金/敷金 8ヶ月 / 0ヶ月 償却 3ヶ月 礼金 3ヶ月 更新料/再契約料 ー その他費用 ー 仲介手数料 1ヶ月 その他手数料 ー 契約期間 6年 契約種別 普通賃貸借
用途
-
物件の現況 ー 可能用途 指定あり 坪数 14.01坪
- 備考






















