物件ID:188486
情報公開日:2026年01月22日
情報更新日:2026年04月20日
立地
-
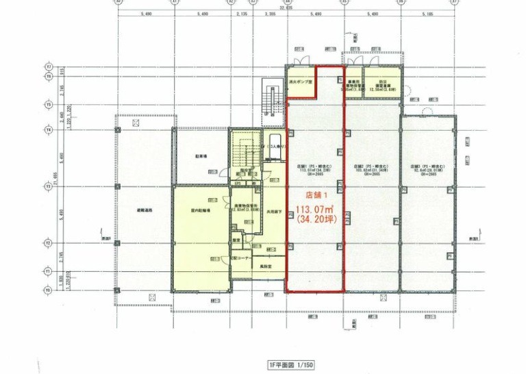
住所 東京都江戸川区船堀三丁目9-20 建物名/所在階 フェリーチェ船堀/1階 最寄駅 都営新宿線船堀駅
徒歩5分近隣駅1 ー 近隣駅2 ー
費用/契約
-
造作価格 ー 賃料(坪単価) 570,004円(20,348円) 管理費/共益費(坪単価) ー(ー) 保証金/敷金 12ヶ月 / ー 償却 0% 礼金 0ヶ月 更新料/再契約料 1ヶ月 その他費用 ー 仲介手数料 1ヶ月 その他手数料 ー 契約期間 3年 契約種別 普通賃貸借
用途
-
物件の現況 ー 可能用途 指定あり 坪数 28.01坪
- 備考



















