物件ID:186275
情報公開日:2026年01月05日
情報更新日:2026年04月13日
立地
-
住所 東京都新宿区高田馬場四丁目2-28 建物名/所在階 DREAMS THE FACTORY/地下1~3階 最寄駅 JR山手線高田馬場駅
徒歩1分近隣駅1 西武新宿線高田馬場駅
徒歩2分近隣駅2 東京メトロ東西線高田馬場駅
徒歩4分
費用/契約
-
造作価格 ー 賃料(坪単価) 3,300,000円(27,415円) 管理費/共益費(坪単価) 152,130円(1,263円) 保証金/敷金 6ヶ月 / 0ヶ月 償却 2ヶ月 礼金 1ヶ月 更新料/再契約料 ー その他費用 ー 仲介手数料 1ヶ月 その他手数料 ー 契約期間 5年 契約種別 普通賃貸借
用途
-
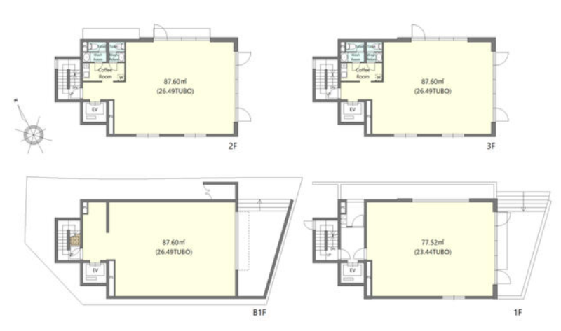
物件の現況 サービス(その他) 可能用途 何業も可 坪数 120.37坪
- 備考
- 現況 地下:カフェ 1~3階:美術学校





















