物件ID:183192
情報公開日:2025年12月03日
情報更新日:2026年03月02日
立地
-
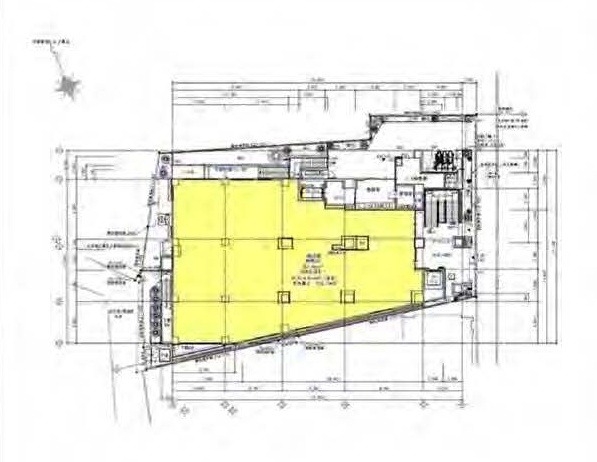
住所 東京都渋谷区猿楽町11-8 建物名/所在階 ENetial代官山 1F0002号室/1階 最寄駅 東急東横線代官山駅
徒歩3分近隣駅1 ー 近隣駅2 ー
費用/契約
-
造作価格 ー 賃料(坪単価) 5,211,360円(44,000円) 管理費/共益費(坪単価) ー(ー) 保証金/敷金 ー / 10ヶ月 償却 ご相談 礼金 1ヶ月 更新料/再契約料 ー その他費用 ー 仲介手数料 1ヶ月 その他手数料 ー 契約期間 10年 契約種別 普通賃貸借
用途
-
物件の現況 ー 可能用途 指定あり 坪数 118.44坪
- 備考



















