物件ID:182998
情報公開日:2025年12月02日
情報更新日:2026年03月02日
立地
-
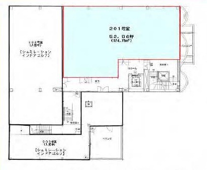
住所 東京都江東区大島六丁目10-15 建物名/所在階 Mビル201/2階 最寄駅 都営新宿線大島駅
徒歩1分近隣駅1 ー 近隣駅2 ー
費用/契約
-
造作価格 ー 賃料(坪単価) 715,000円(13,525円) 管理費/共益費(坪単価) 33,000円(624円) 保証金/敷金 ー / 12ヶ月 償却 1ヶ月 礼金 1ヶ月 更新料/再契約料 ー その他費用 ー 仲介手数料 1ヶ月 その他手数料 ー 契約期間 7年 契約種別 普通賃貸借
用途
-
物件の現況 ー 可能用途 指定あり 坪数 52.86坪
- 備考




















