物件ID:182655
情報公開日:2025年11月28日
情報更新日:2026年04月27日
立地
-
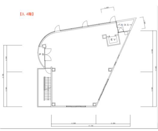
住所 東京都板橋区赤塚新町三丁目3-10 建物名/所在階 共和ハーモテックビル/3階 最寄駅 東京メトロ有楽町線地下鉄赤塚駅
徒歩2分近隣駅1 東武東上線下赤塚駅
徒歩5分近隣駅2 ー
費用/契約
-
造作価格 ー 賃料(坪単価) 464,464円(14,300円) 管理費/共益費(坪単価) ご相談(ご相談) 保証金/敷金 ー / 4ヶ月 償却 1ヶ月 礼金 0ヶ月 更新料/再契約料 1ヶ月 その他費用 ー 仲介手数料 1ヶ月 その他手数料 ー 契約期間 2年 契約種別
用途
-
物件の現況 ー 可能用途 指定あり 坪数 32.48坪
- 備考
- 電気容量:電灯100A 動力100A 電気代、水道代検針請求
敷地の境界までガス本館引き込みあり 解約時スケルトン返し
建物内ガス配管工事費用は借主負担




















