物件ID:182176
情報公開日:2025年11月25日
情報更新日:2026年03月31日
立地
-
住所 東京都大田区蒲田五丁目11-7 建物名/所在階 PRESI蒲田駅前ビル/5階 最寄駅 JR京浜東北線蒲田駅
徒歩1分近隣駅1 京急本線京急蒲田駅
徒歩9分近隣駅2 ー
費用/契約
-
造作価格 ー 賃料(坪単価) 220,000円(18,444円) 管理費/共益費(坪単価) ー(ー) 保証金/敷金 8ヶ月 / 0ヶ月 償却 1ヶ月 礼金 2ヶ月 更新料/再契約料 ー その他費用 ー 仲介手数料 1ヶ月 その他手数料 ー 契約期間 7年 契約種別 普通賃貸借
用途
-
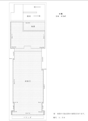
物件の現況 サービス(その他) 可能用途 指定あり 坪数 11.93坪
- 備考
- エレベーターなし
電気水道は3.4.5階同一メーターの為、床面積按分での請求
スケルトン渡し



















