物件ID:182058
情報公開日:2025年11月25日
情報更新日:2026年04月14日
立地
-
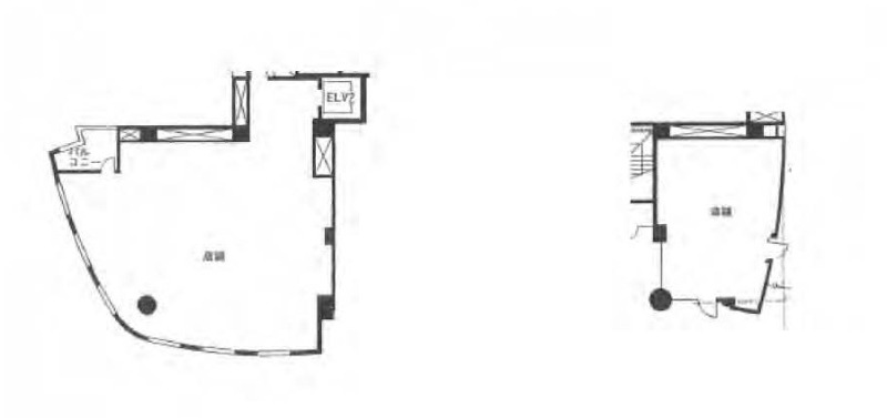
住所 東京都新宿区富久町13-15 建物名/所在階 サウス・タワー 1-2F/1~2階 最寄駅 東京メトロ丸ノ内線新宿御苑前駅
徒歩6分近隣駅1 都営新宿線曙橋駅
徒歩9分近隣駅2 ー
費用/契約
-
造作価格 ー 賃料(坪単価) 1,720,950円(23,097円) 管理費/共益費(坪単価) ー(ー) 保証金/敷金 7ヶ月 / ー 償却 1ヶ月 礼金 0ヶ月 更新料/再契約料 ー その他費用 ー 仲介手数料 1ヶ月 その他手数料 ー 契約期間 3年 契約種別 普通賃貸借
用途
-
物件の現況 サービス(その他) 可能用途 指定あり 坪数 74.51坪
- 備考
- 定期借家契約3年(再契約相談可)
1階:2階メゾネットタイプ



















