物件ID:181917
情報公開日:2025年11月21日
情報更新日:2026年02月17日
立地
-
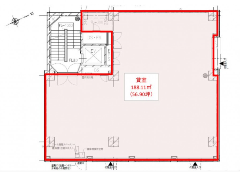
住所 東京都中央区銀座六丁目7-2 建物名/所在階 2階 最寄駅 東京メトロ銀座線銀座駅
徒歩2分近隣駅1 東京メトロ日比谷線銀座駅
徒歩2分近隣駅2 東京メトロ丸ノ内線銀座駅
徒歩2分
費用/契約
-
造作価格 ー 賃料(坪単価) ご相談(0円) 管理費/共益費(坪単価) ー(ー) 保証金/敷金 12ヶ月 / ー 償却 0% 礼金 0ヶ月 更新料/再契約料 ご相談 その他費用 ー 仲介手数料 1ヶ月 その他手数料 ー 契約期間 5年 契約種別 普通賃貸借
用途
-
物件の現況 ー 可能用途 指定あり 坪数 56.90坪
- 備考



















