物件ID:180676
情報公開日:2026年02月15日
情報更新日:2026年02月15日
立地
-
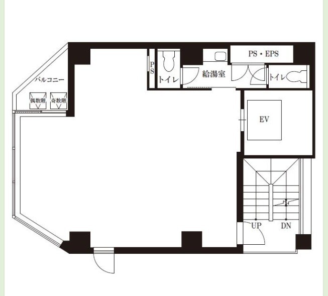
住所 東京都港区新橋二丁目4-7 建物名/所在階 VORT新橋二丁目 6F/6階 最寄駅 東京メトロ銀座線新橋駅
徒歩2分近隣駅1 都営三田線内幸町駅
徒歩3分近隣駅2 JR山手線新橋駅
徒歩4分
費用/契約
-
造作価格 ー 賃料(坪単価) 591,030円(33,000円) 管理費/共益費(坪単価) ー(ー) 保証金/敷金 ー / 10ヶ月 償却 0% 礼金 0ヶ月 更新料/再契約料 ー その他費用 ー 仲介手数料 1ヶ月 その他手数料 ー 契約期間 2年 契約種別
用途
-
物件の現況 サービス(その他) 可能用途 指定あり 坪数 17.91坪
- 備考



















