物件ID:179827
情報公開日:2025年11月06日
情報更新日:2026年04月23日
立地
-
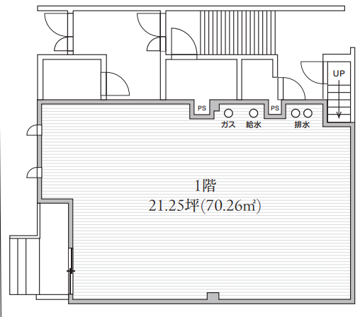
住所 東京都江東区大島七丁目7-3 建物名/所在階 THE PALMS大島/1階 最寄駅 都営新宿線大島駅
徒歩4分近隣駅1 ー 近隣駅2 ー
費用/契約
-
造作価格 ー 賃料(坪単価) 561,000円(26,395円) 管理費/共益費(坪単価) ー(ー) 保証金/敷金 0ヶ月 / 10ヶ月 償却 0% 礼金 0ヶ月 更新料/再契約料 0ヶ月 その他費用 保証会社初回保証委託料 賃料100% 仲介手数料 1ヶ月 その他手数料 ー 契約期間 2年 契約種別
用途
-
物件の現況 ー 可能用途 指定あり 坪数 21.25坪
- 備考




















