物件ID:178265
情報公開日:2026年01月29日
情報更新日:2026年04月23日
立地
-
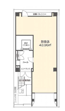
住所 東京都文京区本郷二丁目21-1 建物名/所在階 サンブライト本郷 1F/1階 最寄駅 東京メトロ丸ノ内線本郷三丁目駅
徒歩4分近隣駅1 ー 近隣駅2 ー
費用/契約
-
造作価格 ー 賃料(坪単価) 482,427円(36,300円) 管理費/共益費(坪単価) ー(ー) 保証金/敷金 8ヶ月 / ー 償却 0% 礼金 0ヶ月 更新料/再契約料 ー その他費用 ー 仲介手数料 1ヶ月 その他手数料 ー 契約期間 2年 契約種別
用途
-
物件の現況 サービス(その他) 可能用途 指定あり 坪数 13.29坪
- 備考




















