物件ID:178226
情報公開日:2025年10月24日
情報更新日:2026年04月15日
立地
-
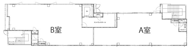
住所 東京都国立市中一丁目8 建物名/所在階 (仮称)国立駅前テナントビル 1B/1階 最寄駅 JR中央線(快速)国立駅
徒歩3分近隣駅1 ー 近隣駅2 ー
費用/契約
-
造作価格 ー 賃料(坪単価) ご相談(0円) 管理費/共益費(坪単価) ご相談(ご相談) 保証金/敷金 ご相談 / ー 償却 ご相談 礼金 ご相談 更新料/再契約料 1ヶ月 その他費用 ー 仲介手数料 1ヶ月 その他手数料 ー 契約期間 ー 契約種別 普通賃貸借
用途
-
物件の現況 ー 可能用途 ご相談 坪数 28.99坪
- 備考



















