物件ID:177179
情報公開日:2025年10月16日
情報更新日:2026年04月06日
立地
-
住所 東京都葛飾区東立石三丁目6-1 建物名/所在階 1~2階 最寄駅 京成押上線京成立石駅
徒歩9分近隣駅1 京成押上線四ツ木駅
徒歩11分近隣駅2 京成押上線八広駅
徒歩24分
費用/契約
-
造作価格 ー 賃料(坪単価) 300,000円(20,524円) 管理費/共益費(坪単価) ー(ー) 保証金/敷金 6ヶ月 / ー 償却 2ヶ月 礼金 1ヶ月 更新料/再契約料 1ヶ月 その他費用 ー 仲介手数料 1ヶ月 その他手数料 ー 契約期間 3年 契約種別
用途
-
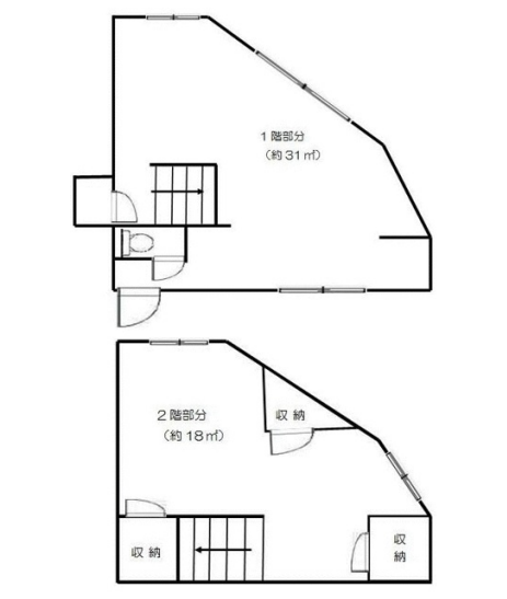
物件の現況 サービス(その他) 可能用途 指定あり 坪数 14.62坪
- 備考
- トイレ等残置物あり 業種相談可 更新事務手数料0.25ヶ月分
指定賃貸保証加入要 保険等加入要



















