物件ID:176645
情報公開日:2025年10月10日
情報更新日:2026年03月11日
立地
-
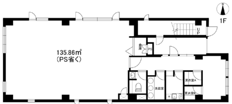
住所 東京都大田区田園調布二丁目52-12 建物名/所在階 1階 最寄駅 東急東横線田園調布駅
徒歩2分近隣駅1 ー 近隣駅2 ー
費用/契約
-
造作価格 ー 賃料(坪単価) 994,620円(24,201円) 管理費/共益費(坪単価) 20,000円(535円) 保証金/敷金 6ヶ月 / ー 償却 1ヶ月 礼金 2ヶ月 更新料/再契約料 1ヶ月 その他費用 ー 仲介手数料 1ヶ月 その他手数料 ー 契約期間 3年 契約種別
用途
-
物件の現況 サービス(その他) 可能用途 指定あり 坪数 41.10坪
- 備考
- 保証会社加入必須 保険加入必須




















