物件ID:174866
情報公開日:2025年09月27日
情報更新日:2026年03月17日
立地
-
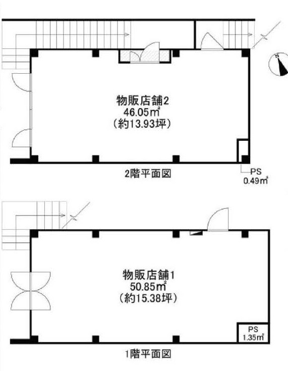
住所 東京都世田谷区奥沢五丁目38-9 建物名/所在階 オオギヤレント/1階 最寄駅 東急目黒線奥沢駅
徒歩6分近隣駅1 ー 近隣駅2 ー
費用/契約
-
造作価格 ー 賃料(坪単価) 507,540円(32,995円) 管理費/共益費(坪単価) ー(ー) 保証金/敷金 10ヶ月 / 0ヶ月 償却 10% 礼金 1ヶ月 更新料/再契約料 1ヶ月 その他費用 ー 仲介手数料 1ヶ月 その他手数料 ー 契約期間 3年 契約種別
用途
-
物件の現況 ー 可能用途 指定あり 坪数 15.38坪
- 備考



















